本项目位于洛阳市伊川县一套四层联排,博乐新风主要负责负一层新风及提供一层两个新风口。
负一层无采光井通风,仅能使用机械通风。河南在夏季时也并非像南方湿度很高,也仅在连续下雨天湿度较高。客户会采用移动除湿机解决此问题,就不考虑新风除湿了。地下室主要为影音功能及休闲区。所需的最大新风量最多也是一家5口人同时娱乐。最大新风量为150m³/h。同时考虑1层是一台大风量新风机带3层,所以也为一层客厅提供2个新风口,补充部分新风。

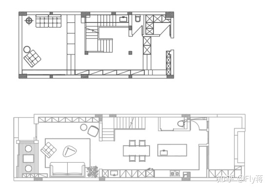
以下为新风设计图纸:


室外雨帽采用不含滤网的大开口不锈钢雨帽,这里为什么不用带有防尘网的雨帽,可以看下图,如果是一楼还好,可以维护清洗,但如果你是高层,后期新风基本就是废了。蚊虫和柳絮或者杨絮讲进风口堵死后,新风量大大降低,反而室内成为负压。也会有用户担心滤网耗材使用过快,但是对于一个初效滤芯,又能有多贵呢。。。
也会有用户说,我家楼层高,20多层,虫子少很多。但是我用实际告诉你,我家18层,小的虫子占率了滤网面积的3-5 %(冬季),更何况夏季呢。

最近也有好几个用户问我,新风真的有用吗?
蒋工自己家装修,从8月份入住到现在。切身的体验告诉各位,不是一般的有用。
首先,我是刚装完修就直接搬进来入住的,家里的全屋定制用的也是爱格的板材。
TVOC直接给我干到3.5mg/m³。新风开启后降低到1.6mg/m³。
全屋的二氧化碳浓度在四挡时,基本控制在800PPM以内。
PM2.5做到30ug/m³以内。
但是我的茶几以及电视柜,还是会有纤维状的丝绒2-3天开始慢慢堆积,用手指擦,可以看出来并不是灰尘,更像是衣物或者被罩带来的附着物。真正的土之类灰尘确实极少。
所以装了新风,其实和拖地、擦桌子也不冲突,只是减少了其周期。
同时,新风和空气净化器也不冲突,反而搭配使用,去除细微颗粒物效果更佳。毕竟一台净化器最低也有200-300m³/h的换气量,无非是内循环而已。

下面来说一下这款设备----博乐Komfort GLA D350
博乐也是德国比较老牌通风品牌,也是为数不多的正宗德国品牌,现在市场的新风品牌90%都是穿着洋鬼子外套的国产品牌。因为这样可以觉得自己血统高贵,利于收割智商税。
https://xg.zhihu.com/plugin/ee1a168867adf4c828230a54aa122560?BIZ=ECOMMERCE外观钣金厚实,进风采用G3+G4初效过滤器及H13带有银离子杀菌层的H13复合高效过滤器,排风为G3+G4初效过滤器保护换热芯。
此系列机型标配了BlauFion纳米粒子,可以启动杀菌消毒功能。
热交换为防霉可水洗全热交换芯,也降低了后期的维护费用


值得一提的是此款机器采用博乐直流无刷电机,缺点是:只有3挡可调...但是厂家提供了9个不同静压的选择。并且可以双电机分控。同时也标配了恒风量功能。
这个功能也是新风做跨层中非常重要的功能之一。
它可以根据管道的压差或风机的电阻值来判定阻力的大小,提高风机转速,来达到满风量的效果。
例如你的滤芯脏堵导致管道系统整体阻力增大,如果是交流电机,新风量是必然衰减的,带有自平衡技术的直流电机会自动的提高转速,来克服这个管路系统和滤网脏堵塞带来的阻力,保持新风的出风量。
同时如果管道较长,或因为安装限制,需要缩径,那么此功能也可以提高其设备的静压值来克服系统阻力提高新风量。
https://xg.zhihu.com/plugin/ee1a168867adf4c828230a54aa122560?BIZ=ECOMMERCE下图为安装照片:
主管道均采用直径160的主管道。室外主管道过梁处有吊柜,层高可以满足绕梁,同时也要预留油烟机排烟管的宽度。
室外进回风采用双根直径110PE管,增加进风截面积,降低风阻、风速提高得风量。




一楼部分利用负一层层高,采用的圆形PE转地送风形式,提供了2根新风管。补充一层客厅60-80m³/h新风量。

最后风量测试照片,8个PE支管的管道内平均风速为5.0m/s,一楼的两个风口因为是做了底盒,无法用圆形风速仪测试,按平均值最低估算。8*5m/s*0.0315^2(管道截面积)*3.14(Π)*3600(时间单位换算)=448.8m³/h。高静压机型的得风量确实要远大于交流低静压机型。

那么如果你要提高新风的得风量必须注意以下几点重要事项:
1、主管道要跟主机设备匹配,厂家已经算好了对应的风速计阻力
2、室外雨帽一定要选择带滤网的而且开口要大,这样阻力才能更小
3、分风箱不可采用塑料扁平设计的,阻力大不说,无法启动充分的动压转换静压,无法降低风噪的同时分风不均
4、支管管路要匹配新风量,不宜太少
5、室外管道一定尽量要短。
做新风,不仅要利用建筑结构的特性,采用合理的方案设计及配件选择对后期使用效果尤为重要。
好的设备+好的安装=好的落地与体验
一般设备+好的安装=好的落地+一般体验
好的设备+一般安装=暴殄天物
锅炉之家客服热线:











