在闭式循环的水系统中,需要给系统定压,其目的是保证系统管道及设备内充满水,以避免空气被吸入系统中。为此,必须保证管道中任何一点的压力都要高于大气压力。
目前,空调水系统的定压方式有两种,一是高位开式膨胀水箱方式;二是气压罐方式(俗称落地式膨胀水箱)。在工程中,应优先采用高位开式膨胀水箱,因为它运行时无需消耗电能,工作稳定可靠。只有当建筑物无法设置高位开式膨胀水箱时,采用气压罐方式。
一、膨胀水箱的设置和配管中的几个问题
在闭式循环的空调水系统中,膨胀水箱的作用:
①容纳水受热膨胀后多余的体积;
②解决系统的定压问题;
③向系统补水。
(1)膨胀水箱的容积和选型
对于普通的高层民用建筑,如果以系统的设计冷负荷Qo为基础,则系统的单位水容量大约为2~3升/kW。当采用双管制系统时,若取水的最低工作温度为7℃,最高工作温度为65℃,则膨胀水箱的有效膨胀容积,可采用简化的估算方法按下式计算:V=0.006×(65-7)×(2~3)Qo =(0.07~0.1)Qo (升)
二、膨胀水箱的设置及其配管
膨胀水箱的安装高度,应至少高出系统最高点0.5m(通常取1.0 ~1.5m)。安装水箱时,下部应作支座,支座长度应超出底板100~200mm,其高度应大于300mm,支座材料可用方木、钢筋混凝土或砖,水箱间外墙应考虑安装预留空洞。
膨胀水箱上的配管有膨胀管、信号管、溢水管、排水管和循环管等。从信号管至溢出水管之间的膨胀水箱容积,就是有效膨胀容积。

1)膨胀管—原则上应接至循环水泵吸入口前的回水管路上,通常接 到“集水器”上。
2)信号管—应将它接至制冷机房内的洗手盆处,信号管上应安装阀门。
3)溢流管—当系统内水的体积膨胀超过水箱内的溢水管口时,水会自动溢出。溢出管上不许安装阀门。
4)排水管—在清洗水箱并将水箱放空时用,排水管上应安装阀门。通常将溢水管和排水管连在一起,排至附近的下水道或屋面上。
5)循环管—在寒冷地区为防止膨胀水箱内水结冻而设置的。当水箱内没有结冻可能时,可不设循环管。特别在高层建筑中膨胀水箱和生活给水水箱通常设在屋顶水箱间内,并将水箱保温,因此无结冻可能。
三、膨胀水箱的补水方式
膨胀水箱的补水方式有两种:
1)浮球阀自动补水—当所在地区生活给水水质较软、且制冷装置对冷媒水水质无特殊要求时,可利用屋顶生活给水水箱,通过浮球阀直接向膨胀水箱补水。这时,膨胀水箱要比生活给水水箱低一定的高度。
2)高低水位控制器补水—当所在地区生活给水水质较硬、且制冷装置(例如,溴化锂吸收式冷温水机组)要求冷媒水必须是软化水时,应在膨胀水箱内设置高低水位传感器来控制软化水补水泵的启动或关停。一旦水位低于信号管,补水泵会自动向系统补水。这种方式要有一套软化水处理设备。来自补水泵的补水管可以接到集水器上,也可接到冷媒水循环泵的吸入口前。
四、气压罐装置(闭式低位膨胀水箱)
气压罐不但能解决系统中水体积的膨胀问题,而且可实现对系统进行稳压、自动补水、自动排气、自动泄水和自动过压保护等功能。与开式高位膨胀水箱相比,它要消耗一定的电能。工程上采用的气压罐是隔膜式的,罐内空气和水安全分开,对冷媒水的水质有保证。气压罐的布置比较灵活方便,不受位置高度的限制,可安装在制冷机房、热交换站和水泵房内,也不存在防冻的问题。

图片2
1.气压罐;2.补水泵;3.配电箱;4.安全法;5.压力控制器;6.自动排气罐;7. 出水口;8.吸水口;9.底座;10.吊装环。
工作原理
采用气压罐装置定压时,通常把定压点放在空调水系统循环泵的吸入端。

图片1
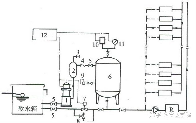
1.补水泵;2.补气罐;3.吸气阀;6.气压罐;10.压力控制器;11.电节点电压力表;12.电控箱
1)自动补水—按空调水系统的稳压要求,在压力控制器内设定气压罐的上限压力P2和下限压力P1。P1数值实际上就是整个水系统的静压,即建筑物的高度。上限压力P2应比水系统的静压高3~5m水柱,即(0.03~0.05)MPa。所以,P1=P2-(0.03~0.05)MPa,当需要向系统补水时,气压罐内的压力P随水位而下降。当P下降到下限压力P1时接通电机,启动水泵,把贮水箱内的水压入补气罐,使罐内的水位和压力上升,压力上升到上限压力P2时,切断水泵电源,停止补水。此时,补气罐内的水位下降,吸开吸气阀,使外界空气进入补气罐。在如此循环工作中,不断地向系统补充所需的水量。
2)自动排气—由于水泵每工作一次,给气压罐补气一次,罐内的容积逐步扩大,水位也逐步下降。当下降到自动排气阀的限定水位时,就排出多余的气体,恢复正常水位。
3)自动泄水—当水系统内水的体积膨胀,使水倒流到气压罐内,其水位上升时,罐内压力P亦上升。当压力超过系统静压(0.01~0.02)MPa,即达到电接点压力表所设定的上限压力P4时,接通并打开泄水电磁阀,把气压罐内的水泄回到贮水箱。待泄水到电接点压力表所设定的下限压力P3时停止。一般取P3= P4-(0.02~0.04)MPa
4)自动过压保护—当气压罐内的压力超过电接点压力表所设定的上限压力P5时,自动打开安全阀和电磁阀一起快速泄水,迅速降低气压罐的压力,达到保护系统的目的。安全阀的设定压力为P5,一般取P5 = P4 +(0.01~0.02)MPa。正常情况下,补水量按循环水量的1%补水计算,考虑出现事故补水的情况时,补水泵的流量按循环水量的3~5%选取;扬程为楼高加5米即可.补水泵通常选用变频补水泵,随着系统失水后压力的变化,调整水泵的频率,补水量是一个变量。
客服热线:











