第一章、概述
锅炉钢架是承受锅炉几乎全部重量的结构,同时还决定了锅炉的外形尺寸,它的安装质量优劣,既影响受热面的安装和炉墙的砌筑,也影响钢架承重的性能,因此钢架安装是锅炉安装一道重要工序。钢结构从预组合、安装到成品,对不同的结构都有不同的要求,就安装方法而言,根据工程质量优良、安全生产、保证工期、成本低廉、文明施工方面因素结合各个工程的不同特点制定最佳安装工艺及吊装方案。
一、 编制依据
2.1锅炉厂提供的设计图纸。
2.2《锅炉安全技术规程》TSG11-2020
2.3《电力建设施工技术规范》第二部分:锅炉机组 DL/T 5210.2-2019
2.4《电力建设工程施工安全管理导则》NB∕T 10096-2018
2.5《火电建设项目文件收集及档案整理规范》DL/T 241-2012
2.6《电力钢结构焊接通用技术条件》DL/T 678-2013
2.7 《施工现场临时用电安全技术规范》JGJ 46-2005
2.8 《电力建设施工质量验收规程》 第5部分:焊接篇DLT 5210.5-2018
二、施工组织管理
设立施工组织职能
施工负责人:负责对施工组工作的安排和管理
技术负责人:负责现场吊装技术施工工作进行指导。
施工组:负责钢架的位置找正和焊接施工、
资料员:对施工中各项验收记录签证。
安全员:负责各项工作中的安全布置并及时做好安全交底工作,根据工地周边情况做好整体警戒工作的规划。
二、 安全文明施工措施:
1. 所有参加作业人员必须头戴安全帽,高处作业人员佩带安全带。
2. 吊装区域设置警戒线,并有明显的醒目安全标识,无关人员不准入内。
3. 在周边临空状态下进行高空作业时应有牢靠的立足处(如搭设脚手架或作业平台)。
4. 交叉施工不宜上下在同一垂直方向上的作业。下层作业的位置,宜处于上层高度可能坠落半径范围以外,当不能满足要求时,应设置安全防护层。
5. 设置专门监护人,防止高处作业或交叉作业时造成高处落物伤人。
6. 吊运时,不得从人的上空通过,吊臂下不得有人,起重机在安全保护装置发生故障、失效或不准确时,严禁带病作业。
7. 在作业中,严禁对传动部分、运动部分及运动件所及区域做维修、保养、调整等工作;传动部分应润
滑良好。
8. 在露天有六级及以上大风或大雨、大雪、大雾等恶劣天气时,应停止起重吊装作业。
9. 雨雪过后作业前,应先试吊,确认制动器灵敏可靠后方可进行作业。
10. 当进行高处吊装作业或司机不能清楚地看到作业地点或信号时,起重指挥人员必须配备对讲机,且信号明确,绝对不允许与其他施工队频道串联使用。
11. 在光线不足的工作地点或者在夜间进行工作,都应该设置足够的照明设备。
四、安全生产目标
达到五无目标,即“无死亡事故,无重大伤人事故,无重大机械事故,无火灾,无中毒事故”并将一般轻微事故发生率控制在千分之三以下。
安全方针:安全第一,预防为主
五、人员配备
施工负责人(指挥) 1人
技术负责人 2人
资料员 1人
安全员 1 人
吊车指挥 3 人
吊车司机 4人
普工 5人
钢架焊工 25人
电工 1 人
第二章、准备工作
第一节、锅炉设备基础的验收
1、基础验收
1.1由土建部门提供基础浇灌质量证明书和强度试验报告。
1.2基础外形尺寸、标高、基础螺栓预埋位置的正确性应符合标准。
1.3根据主厂房建筑的基础点,划出锅炉纵向中心线和炉膛横向中心线。
1.4按照锅炉基础负荷图,横向中心线和尾部横向中心线,各引线要求准确,要符合下表标准:
柱子间距≤10m ±1mm,>10m ±2mm
柱子相应对角线≤20m ≤5mm , >20m ≤8mm。
2、基础检查划线:锅炉构架安装前,根据土建锅炉基础图,对锅炉基础进行验收。确认基础浇灌合格,基础尺寸正确,对土建施工单位提交的锅炉基础几何尺寸进行复查,其几何尺寸偏差是否在规定范围内,并根据土建施工单位提交标高基准点和厂房中心线,进行锅炉基础放线,用墨斗在每个基础上作出醒目的纵横中心线标记。
3、基础应由建设、监理、土建、安装单位共同进行检验土建施工质量,几何尺寸是否符合图纸设计要求,并具备完整的施工质量技术资料,共同验收合格后交安装单位施工
第二节、锅炉钢架、梁、柱的检查与校正安装说明书
1.安装前的检查
根据锅炉厂提供的钢结构图和供货清单进行清点数量。并对每个零部件的几何尺寸进行复测,其
允许尺寸误差如下:
1.1立柱部分:
(a)立柱长度允许误差:长度L=3001~8000mm时允许误差0~-4mm,
长度L=8001~15000mm时允许误差+2~-6mm。
(b)立柱的弯曲度不大于全长的1/1000并且不大于10mm。
(c)立柱的扭转值不大于全长的1/1000并且不大于10mm。
1.2顶板部分:
(a)板梁两端支点间尺寸的允许偏差为土10mm。
(b)板梁腹板的局部平面度,任一平方米内不大于5mm。
(c)板梁的旁弯度不大于全长的1/1000并且不大于10mm。
(d)板梁的向上重直挠度不大于30m,向下垂直挠度不大于5mm。
1.3梁部分:
(a)梁全长L乏1000mm允许误差0~-4mm。
(b)梁全长L=1001-3000mm允许误差0~-6mm。
(c)梁全长L-3001~5000mm允许误差0--8mm。
(d)梁全长L=5001~15000mm时,允许误差0--10mm.
(e)梁的旁弯度和挠度均不大于全长的1/1000并且不大于10mm。
(f)梁的扭转值不大于全长的1/1000并且不大于10mm。
1.4外观检查:有无裂纹、重皮、锈肩。有无在运输装卸中造成的变形,创伤等缺陷。
1.5外观检查焊口质量有无裂纹,夹渣和未溶合,焊缝高度应符合图纸要求,咬边深度不大于0.5mm。
1.6检查及校正的方法
(1)、当构件直线度超差时,则需要校正,校正工作是在现场钢架组装平台上进行,以一边检查,一边校正,一边组装为宜,这样可以将搬运、节装工作量降至最低。
钢柱直线度的检查方法:在钢柱相邻两侧面中心线上,每端各焊接一根短角钢,以角钢为依据拖拉钢丝,使钢丝位置距两段钢柱侧面距离相近,然后用直尺每间隔1m测量的钢丝至柱侧面的距离,就得出立柱在该侧面上的直线度,应用同样的方法可测得另一侧面的直线度。
(2)、钢柱直线度的校正的方法采用热效法。热效法就是利用氧---乙炔火焰对构件进行局部加热,加热部位就相对伸长,而伸长部分对未伸长的部分有压力,故伸长部分的长度比在没有压力作用下的要短,当加热部分回复常温后,其长度比加热前短一些,产生巨大拉力,从而使构件发生变型。加热温度700°C,不超过800°C.变形较大,立即用冷水降温。
第三节、搭设钢架的组合平台及每组钢架、顶板梁的组合
1、搭设钢架的组合平台
钢架组合平台的搭设,组合平台搭设如下图所示

1.1组合平台需要足够的强度和稳定性,钢支撑部分采用点焊连接。
1.2各支撑工字钢标高要相同,可采用水平仪测量,每组合一组钢架后在组合另一组之前要重新测量各点标高。
1.3各支撑点的距离要适应,一般间距3m左右、钢柱焊接位置要尽量避开支撑点,以方便焊接施工。
1.4点支撑高度要方便焊接施工和焊接质量检验。
2、每组钢架组合本锅炉钢结构设计有8根立柱,所有的立柱及其连梁、拉条和顶板梁构成了整体框架,焊接连接。
2.1钢架主立柱分四段供货,每根立柱四段对接时,将对接的立柱放置在组对支架上,对各段进行检查,核对其长度、托架等尺寸是否符合设计,距对接口外150mm内防锈漆应清除干净。调整接口位置、检查立柱各部尺寸,总长度应比设计长5mm,作为焊接收缩余量,各项尺寸符合要求后点焊固定。
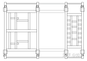
2.2锅炉钢架每同名柱为一组,每组钢架包括立柱、横梁、拉条及平台支撑,即Z1—Z/1为一组,宽11.2米,高40.56m,重量约40T,Z2一Z/2为一组,宽11.2m,高40.36m,重量约45T,Z3一Z/3为一组宽11.2m高40.56m,重量约56T,Z4一Z/4为一组,宽11.2m高40.86m,重量约45T。
2.3将组对、校正好的同名钢柱吊置在支撑上,调整好钢柱各支撑点的标高,两柱中心距和对角线。在组合平台的型钢上划出各立柱的中心线位置及边缘轮廓线。采用拉对角线的方法检查所划线的准确性。并标明立柱中心距尺寸。各立柱边缘轮廓线处设置角钢定位(焊在平台的型钢上)以保证其平行度。将各立柱吊运到组合平台上按划好的各线分别就位,并使立柱的柱脚底部保持在同一直线,以便确定横梁位置时从底部测量尺寸。
2.4先组装上、下两根横梁,只点焊固定即可,然后组装中间横梁。
2.5确认两柱中心距和对角线无误后开始焊接托架顶面与横梁间的焊缝。焊接橫梁的顺序是先两端后中间。横梁与钢柱的连接板应先焊钢柱这一边的焊缝,待冷却后再焊另一道焊缝。这样可避免钢柱与连接板的对焊接缝的收缩对钢柱直线度产生影响。
2.6根据1m标高线确定各平台托架横梁下平面的标高。在组装时,应将平台托架全部安装好。
2.7在柱脚板上平面画钢柱就位所需的纵横中心线,以标识。
2.8复核两柱间间距和对角线长度是否变化,从中得出焊接变形的变化趋势。
2.9测量一米标高线至柱脚板底面的长度,并做记录。这些数据就是钢柱基础垫铁高度调整的依据。
钢架组合件的允许误差
| 序号 | 检查项目 | 允许误差mm |
| 1 | 柱间距偏差 | ≤1‰柱距,且≤10 |
| 2 | 柱间平行度偏差 | ≤1‰柱距,且≤10 |
| 3 | 横梁标高偏差 | ±5 |
| 4 | 梁间平行度偏差 | ≤1‰梁长,且≤10 |
| 5 | 组合件对角线差 | ≤1.5‰对角线长,且≤15 |
| 6 | 横梁与立柱中心线相对错位 | ±5 |
3、 顶板梁组合示意图为:

将顶板梁、水冷系统吊杆和端部支撑架按示意图组合成两片。Z1-Z2顶部板梁组合件(水冷壁吊杆),总重量约50T,其次Z3-Z4组合件,总重量约20T,顶板梁组合是一个矩形框架,应按下表进行检查:
| 框架边长L | L≤2500 | 2500<L≤5000 | L>5000 |
| 两对角线长度偏差 | ≤5 | ≤8 | ≤10 |
| 旁弯值或挠度 | ≤4 | ≤6 | ≤8 |
第三章、吊装方法
第一节、钢架的吊装前准备工作
吊装前必须做好以下工作
(1)、检查组件各焊接部位是否有遗漏。
(2)、对钢性不足的组件要进行适当加固。
(3)、准备工器具、量具,足够数量的垫铁。垫铁摆在处理好的基础上。
(4)、基础清理干净,且划线验收。
(5)、起吊用钢丝绳经过核算和检查,起重设备经负荷试验合格。
(6)、钢丝绳绑在组件最牢固的地方,并在组件重心上方。与钢架接触处如有棱角必须垫木块。
(7)进行设备检查,确认其弯曲度、长度、扭曲度是否合格,发现问题及时上报,得到处理意见,并处理合格后方可进行吊装。每根钢柱在吊装前在头尾互成90度两个方向上划出清晰中心线,并做好醒目标志。此外还要在尾部做好安装方向的标志。
(8)、每根钢柱吊装前,在地面将临时爬梯绑好,并仔细检查,确认其牢固可靠。在柱头挂好找正拖拉绳,尾部挂好溜绳。
第二节、锅炉每组钢架的吊装


(1)每根钢柱顶部栓两根Φ16mm钢丝绳做缆风绳。
(2)、钢柱上吊点位置的选择,为了避免钢柱在起吊过程中发生永久变形,就要使起吊时钢架所受到弯曲力最小。钢柱的吊点在钢柱长度2/3~3/4且靠近横梁。
(3)钢架组合后最大重量约(柱、横梁)56吨。因钢架在地面平躺拼装尺寸较长,且重量较大,为防止起吊过程中产生变形。采用双机抬吊,各台起重机所承受的载荷均不得超过各处的额定起重能力。由500T液压汽车起重机做为吊装主机,根据现场站位情况,工况最大起重量约59T,起重机主臂约68米,回转半径约20米。260吨汽车起重机,做为吊装副机。为减少钢柱脚与地面的摩阻力,副机吊点选择在钢架下面,起吊钢架时配合主机起钩,随着主机的起吊,副机要回转,在递送过程中,副机承担了一部分荷重。用两台起重机吊运同一重物时,钢丝绳应保持垂直;各台起重机的升降、运行应保持同步。副机将钢架柱脚递送到钢架垂直起升,钢架吊离地面100MM时停住,检查各部位是否正常:如钢丝绳受力,吊车、绑扎点正常,组件的钢度性能等均无异常情况下,然后副机摘钩,卸掉荷载,此刻主机方可开始满载吊装,起吊工作应缓慢地进行,起吊中注意用拉绳控制钢架,不得让其自由摆动以免碰坏构件或伤人,不得突然制动。起吊时,严禁降落臂杆或同时进行两个动作;钢架直立后,锅炉基础处各设一名指挥,用对讲机相互联系指挥,至钢架就位。吊车回转过程中专设人员监护及拖拉尾绳,摆正钢架位置,使钢架准确的就位至基础之上。先吊装Z1—Z/1钢架,立起后用揽风绳临时拉住,再吊装Z2一Z/2钢架,找正后将一侧横梁吊装就位、焊接固定。然后吊装Z3一Z/3、Z4一Z/4钢架,按着以上方法就位。
(4)就位一组钢架,首先让两钢柱脚板上的中心线与柱脚基础中心线重合。
(5)用相同方法安装另一组钢架,并找正。
(6)安装相邻两组钢架之间的横梁、安装每一根横梁、都要复查该横梁处相邻两柱的中心距,先焊牢上、中、下三根横梁,在安装其他的横梁和平台托架、平台、横梁焊接前,各钢柱高和垂直度、对角线长度必须符合要求。
(7)将安装好的两组钢架做临时固定。
(8)按着以上步骤一组一组地安装其余钢架,安装承重梁前,必须先复查其托架的标高的一致性。缆风绳可暂不拆除,锅筒安装时它们还能起作用。
(9)安装好余下的平台,平台托架要按交工的要求焊好,可避免人身事故发生。
(10)由合格焊工焊好全部横梁,焊接过程中,要经常检查钢架的几何尺寸。
(11)对钢架安装质量进行检测,检测项目主要有:上、下标高线各柱间水平对角线和垂直对角线,各柱垂直度,承重梁水平度,任意两柱间的中心距,1m标高线间的标高误差。钢架安装允许偏差和检测方法,应符合下表的规定:
钢架安装允许误差

第三节、锅炉每组顶板梁的吊装

(1)先吊装Z1-Z2顶部板梁组合件,总重量约50T,吊装就位固定牢固后方可松勾,其次再吊装Z3-Z4组合件,总重量约20T,待该组件吊装就位并固定好后,再继续对Z2-Z3中间两边的端部支撑以及大梁进行单根吊装就位,剩余部分待留,给旋风分离器吊装作为预留吊装口;根据现场吊车的站位情况,对照500吨汽车吊工况表,500吨汽车吊满足现场吊装需求。安装允许偏差和检测方法,应符合下表的规定:
顶板梁安装允许误差
| 序号 | 检 查 项 目 | 允许误差mm |
| 1 | 主梁支座与柱顶平面中心线偏差 | ≤3 |
| 2 | 梁标高偏差 | ±5 |
| 3 | 梁水平度偏差 | ≤5 |
| 4 | 梁间距偏差 | ±5 |
| 5 | 梁平行度偏差 | ≤5 |
| 6 | 梁间对角线差 | ≤1‰立柱长度且≤10 |
| 7 | 横梁吊孔位置偏差 | ±3 |
为保证施工方便和安全,在结构安装时,平台斜梯应同步安装。
第四章、安全技术要点
1、凡参加施工的全体人员都必须遵守安全生产规程。
2、吊装作业人员都必须持有上岗证,有熟练的钢结构安装经验,起重人员持有特种人员上岗证,起重司机应熟悉起重机的性能、使用范围,操作步骤,同时应了解钢结构安装程序、安装方法,起重范围之内的信号指挥和挂钩工人应经过严格的挑选和培训,必须熟知本工程的安全操作规程,司机与指挥人员吊装前应相互熟悉指挥信号,包括手势、旗语、哨声等。
3、起重机械行走的路基几轨道应坚实平整、无积水。
4、起重机械要有可靠有效的超高限位器和力矩限位器,吊钩必须有保险装置。
5、应经常检查起重机械的各种部件是否完好,有变形、裂纹、腐蚀情况,焊缝、螺栓等是否固定可靠。吊装前应对起重机械进行试吊,并进行静荷载及动荷载试验,试吊合格后才能进行吊装作业,起重机械不得带病作业,不准超负荷吊装,不准在吊装中维修,遵守起重机械“十不吊”。
6、在使用过程中应经常检查钢丝绳的各种情况:
(1)、磨损及断丝情况,锈蚀与润滑情况,根据钢丝绳程度及报废标准进行检查;
(2)、钢丝绳不得扭劲几结扣,绳股不应凸出,各种使用情况安全系数不得小于标准;
(3)、钢丝绳在滑轮与卷筒的位置正确,在卷筒上应固定可靠;
7、吊钩在使用前应检查:
(1)、表面有无裂纹及刻痕;
(2)、吊钩吊环自然磨损不得超过原断面直径的10%;
(3)、钩胫是否有变形;
(4)、是否存在各种变形和钢材疲劳裂纹;
(5)、检查绳卡、卡环、花篮螺丝、等是否有变形、裂纹、磨损等异常情况;
(6)、检查周围环境及起重范围内有无障碍,起重臂、物体必须与架空电线的距离符合以下规定;
| 输电线路电压 | 1KV以下 | 1—20KV | 35—110KV | 154KV | 220KV |
| 允许与输电线路的最近距离 | 1.5 | 2 | 4 | 5 | 6 |
8、在吊装作业时,吊物不允许在民房街巷和高压电线上空及施工现场办公设施上空旋转,如施工条件所限必须在上述范围吊物旋转,需对吊物经过的范围采取严密而妥善的防护措施。
9、吊物起吊悬空后应注意以下几点:
(1)、出现不安全异常情况时,指挥人员应指挥危险部位人员撤离,而后指挥吊车下落吊物,排除险情后再起吊。
(2)、吊装过程中发生机械故障,应指挥吊车将重物慢慢的落在地面或楼面平但的位置,不准长时间悬在空中。
附件1.

附件2

附表3 安全技术交底记录

锅炉之家客服热线:











