01 用示功器测取示功图原理
示功图通常利用示功器来测取,常用的示功器有机械式、电气式和电子式,在故障诊断中,一般采用电子式示功器。图1是电子式示功器微机系统示意图。图中应变式压力传感器送出的压力信号由动态电阻应变仪调制成1V范围内的电压信号,经过采样放大器放大和零电平移动,由A/D变换器转换成数字量后输入微机。同时,光电传感器送出气缸内活塞止点信号,此信号经放大,一路送往数字转速显示仪测定转速;另一路经采样放大器调制后,作为开关量直接输入微机外设接口,控制A/D变换器的启动及采样循环的终了。系统可完成数据采集、处理、打印及数据文件存储。

图1 测试示功图的微机系统简图
02 无损气缸壁的气缸压力测量方法
许多新型往复压缩机现在都设计有压力测量点,而对于老式压缩机,为了测取气缸压力,目前都是采用在气缸缸壁上直接开孔取压的方式。由于这种取压方式操作的困难性及所带来的破坏性,制约了示功图法诊断故障的广泛应用。下面将介绍的无损气缸壁的气缸压力测量方法是一种从气阀结构上出发的方法。它既能准确测量气缸内气体压力,又不损坏气缸缸壁,同时操作方便。
压缩机气阀种类很多。按闭合元件形状来分,可分为环状阀、网状阀、碟形阀、槽状阀、条状阀及舌簧阀等,但不论各类气阀结果有何差异,气阀总是与气缸相联通的。因此,完全可能在气阀上开孔测取气缸压力。对于大、中型压缩机而言,环状阀应用最为普遍。下面以环状阀为例,来介绍无损缸壁的气缸压力测取方法实施细节。

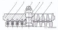
图 2 环状阀结构简图
1一阀座;2—阀片;3—弹簧;4—螺栓;5—测压通孔;6—升程限位器
图2是环状阀结构简图,它由阀座、阀片、弹簧、升程限位器及气阀螺栓组成。阀座和升程限位器之间的连接可采用螺栓或螺钉。螺钉连接的优点是进、排气阀的阀座及升程限位器可以互换;缺点是螺钉头有可能断裂而落入气缸,造成重大事故。所以必须增加挡圈,近年来气阀大多用螺栓连接。低压时,螺孔制成通孔,为防止工作时松动,螺栓端部应予铆死;高压时,为了防止通过螺纹漏气,螺孔制成盲孔,螺栓的防松依靠螺栓上凸缘与阀座(或升程限位器)进行挤压力锁紧。螺栓直径根据气阀直径依照有关标准选取,一般均在 10mm 以上。
由于螺栓直径较大,可以在其中心通过简单的摇臂钻床钻出 2~3mm 的引压通孔,而对螺栓的强度不会造成很大影响,如图2所示。在测压通孔的上部约10mm处插入引压铜管,引压铜管外圆与测压通道之间采用耐高温的环氧树脂胶密封。根据需要可将传感器直接布置在螺栓顶部或通过引压铜管将气缸压力引出机器,将传感器布置在机器外部。考虑到引压管过长会带来信号滞后较大等因素,也可以采用将传感器布置在气腔的方式,如图3所示。若将传感器布置在阀腔中,则其引线需要穿过缸盖壁面才能与计算机测试系统相连接,此时需要考虑引线密封的问题。可采用图4所示的密封结构。经实验证实,该结构可很好地解决引线密封问题。

图 3 传感器连接示意图
1—螺栓;2—引压管;3—传感器

图4 引线气缸盖密封结构
1—气缸盖;2—密封胶;3—密封底座;4—引线;5—密封压盖;6—密封胶木
03 用示功图判别压缩机的几种故障
利用示功图形状变化,可以显示压缩机在结构设计、管道配置以及操作运行中的故障和问题。例如:测量压缩机的指示功率,气阀上的压力损失和功率损失,气缸余隙容积的大小,气阀和管道截面积是否太小,气阀、活塞环、密封填料是否泄漏,气阀弹簧力过大或过小,以及阀片颤振、气流脉动等故障情况。故障的判别一般采用正常示功图与不正常示功图作对比的方式进行,并且要有一定的实践经验。
表1列出了几种典型示功图,图中虚线表示压缩机工作正常情况,实线为有故障情况,通过两者比较,判别压缩机的某些故障。表中对示功图的特点作了说明。
表1 压缩机某些故障的示功图比较

图5显示了气阀工作情况的几个典型示功图。图(f)、图(g)、图(h)的吸、排气线呈多次波动状态,分别表示阀片发生颤振、阀片升程高度太高和气流压力脉动。三者情况有时较难区分,可以通过测量吸、排气腔或管道中的动态压力,把气流压力脉动情况区别开来。而阀片颤振情况与升程高度是有联系的,属于哪一类故障原因较难区分。

图5 气阀几种工作情况的典型示功图
锅炉之家客服热线:











