模块锅炉是什么?
模块锅炉是通过多台锅炉联控,根据设定好的供热温度曲线等有关参数,并参考室外温度智能的自动判断应启动、停运的锅炉台数,自动实现近无人值守模式。

并联系统控制
1.采暖系统控制:
采暖或多用途热源控制核心是通过四个温感采集时时系统负荷控制锅炉的启动台数和单台TDR达到系统高效运行。
2.热水系统控制:
热水系统重要的是使用温度,系统控制要通过流量和温差准确快速控制热水器的出力。保证热水的稳定,区别采暖系统中央控制反应速度及设备动态调整要更快。

-技术优势-
庆东纳碧安模块组合式热水锅炉(又叫cascade并联系统)在国外已有悠久的发展应用的历史,随着中国经济的发展,对如何环保、高效的提供采暖及生活热水的方式越来越紧迫的提了出来。尤其在“煤改气”工程更是推进了为燃气锅炉的发展,推波助澜的数年内,在全国众多城市已开始广泛应用模块组合式燃气热水锅炉(并联系统)。庆东纳碧安的模块式锅炉(并联系统)以全新的设计理念(专利))、卓越的技术品质、优异的性能、环保高效的形象得到众多客户的广泛认可和高度评价。

-并联系统-
◆案例欣赏◆
上海华源广场: 华源世界广场建筑面积4.27万平方米。32层,标准层高3.2米,建筑高度110米,该楼座落于上海市中山北路、光新路口,是中国华源集团在上海的主要办公场所之一,是集商务办公、餐饮娱乐、银行证券、商场及多功能,目前已成中国华源集团的标志性建筑。

改造前锅炉

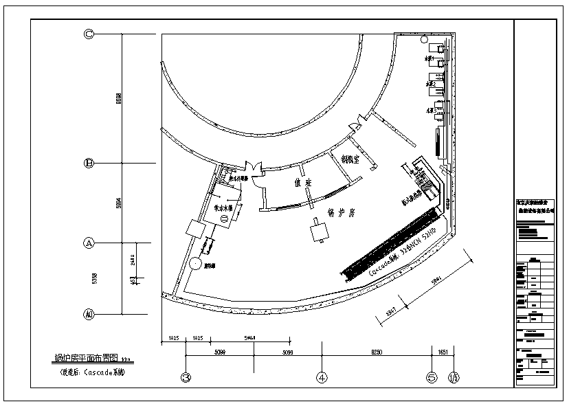
-设计图纸-
经过反复的沟通、仔细的现场勘察,高效而缜密地完成了供暖系统的改造设计。不更改锅炉房及设施前提下,根据现场锅炉房尺寸进行有效的安装。本次工程庆东纳碧安使用了高效节能、操作简便、安静低噪的52HD并联系统。不仅高效节能,便于后期维护。

改造后模块式锅炉
◆模块化的优势◆
◆模块化设计,结构简单,安装灵活、方便
◆寿命长,替换方便,维护简单、经久耐用
◆系统完善,运行安全可靠
◆清洁、环保、低噪音
◆高效、节能、运行费用低
锅炉之家客服热线:











