案例1
某压缩机年度大检修时,更换新转子后,在正常工作条件下运行时,各项工艺参数与检修前相同,但轴振动的振幅逐渐增大,最终达到设计值的3倍左右,机组处于临界状态运行。
压缩机发生异常振动时,转子两端轴承处的径向振动较大,振动信号的时域波形及频谱如图1所示。同时,其相位不稳定,轴心轨迹波动较大;若降低工作转速,异常振动明显减低。

图1 异常振动时的波形与频谱
诊断意见:根据压缩机发生异常振动的现象和规律,初步怀疑是由于转子热套配合件过盈不足造成的。
由于是新更换的转子,若真的发生了过盈不足故障,处理比较困难,为慎重起见,必须排除其他因素的影响。首先排除不平衡的可能性,检查转子动平衡记录和合格证,对照频谱图,可以排除这个因素的影响。对照频谱图和振动特征,参考工艺参数变化情况,又逐项排除了其他原因。最终确认振动是由于转子的制造缺陷,叶轮与转轴配合面过盈不足造成的,需停机拆卸转子处理。
生产验证:停机后检查转子动平衡,未发现问题。进一步拆卸转子,发现叶轮可以很容易地从转轴上拆卸下来,从而证实了转轴与叶轮配合面过盈量不足。更换合格的转子后,在原先的工艺条件下机组运行正常。
案例2
牵引电动机主动齿轮系内燃机车运行部传递动力的关键部件之一,它与电动机轴的装配形式采用的是圆锥轴过盈配合,在机车满负荷运行时,其承担着列车大约410kW的牵引力。如果机车在运用当中出现主动齿轮松脱或崩裂,特别是机车在低速重载牵引工况下,将导致电动机绕组烧损放炮,严重影响着机车的行车安全。该厂自试修机车以来,主动齿轮厂外松脱、崩裂现象时有发生,这不仅给工厂造成较大的经济损失,而且严重影响着工厂的质量信誉,也给用户带来诸多不便。
诊断意见:针对上述质量事故,经技术分析,发现造成主齿松脱有以下几种原因:
(1)齿轮和电动机轴的接触面积不够(<75%)。
(2)锁紧螺母没有锁紧。
(3)锁紧垫片有缺陷。
(4)齿轮热套时 1.5~1.7mm 的轴向压入量不够。经过现场检查、试验进一步发现,出现齿轮松脱的主要原因是由于齿轮加热时间的控制存在缺陷,造成1.5~1.7mm的轴向压入量不足。
该厂自试修东风型机车以来,主动齿轮热套装配一直采用感应加热,通过控制加热时间来控制轴向压入量(即时间控制法)。虽然感应加热器加热比传统的油浴加热效率高,但它受网络电压波动、操作工的熟练程度等诸多不稳定因素的影响,容易造成即使在相同的加热时间下,主动齿轮内孔的膨胀量也不一致,从而导致套装后的主动齿轮相对电动机轴的轴向压入量不能准确、稳定地控制在1.5~1.7mm范围内。
处理措施:为了克服上述时间控制法的缺陷,在不增加工人劳动强度的条件下,将轴向压入量在一次套装过程中控制在1.5~1.7mm范围内。经过生产现场调查和技术可行性分析,决定采用工装限位法替代现行的时间控制法。
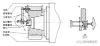
利用主动齿轮齿槽和两端面固定的工装,将1.5~1.7mm的轴向压入量通过塞尺在主动齿轮冷态套装时预先设定。热态套装时利用工装上限位螺杆限位作用,将轴向压入尺寸准确控制在塞尺预先设定的长度之内。
图2为牵引电动机主动齿轮热套限位工装示意图。

图2 热套限位工装示意图
生产验证:
(1)直接限位工装使用后,现场套装情况良好,返工率仅为2%,1.5~1.7mm的轴向压入量均能严格保证;
(2)据各铁路局、机务段反馈的信息知, 自运用限位工装控制主动齿轮热套质量的出厂机车,在运用当中再没有出现一例主齿松脱、崩裂事故。
客服热线:











