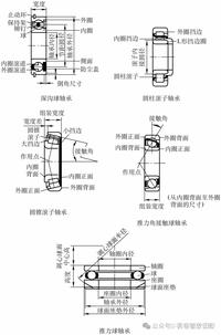
01 常用系列部件及各部位的名称
常用的单列深沟球轴承、单列圆柱滚子轴承、圆锥滚子轴承、推力角接触球轴承和推力球轴承的部件及各部位的名称如图1所示。

图1 几种常用类型轴承各部件和部位的名称
02 密封装置
很多小型球轴承有各种密封装置,用于封住内部的油脂和防止外面的粉尘进入(所以也称为“防尘盖”),并分单边和双边两种,用字母和数字标注在规格型号后面,单边的称为Z型,双边的称为2Z型,常用的有: “-Z”(轴承一面带防尘盖,如6210-Z)、“-2Z”(轴承两面带防尘盖,如6210-2Z)、“-RZ”(轴承一面带非接触式骨架橡胶密封圈,如6210-RZ)、"-2RZ”(轴承两面带非接触式骨架橡胶密封圈,如6210-2RZ)、"-RS”(轴承一面带接触式骨架橡胶密封圈,如6210-RS)、"-2RS"(轴承两面带接触式骨架橡胶密封圈,如6210-2RS)等。如图2所示。

图2 深沟球轴承的密封类型
03 保持架
保持架有用于球轴承的波浪式和柱式及用于圆锥滚力轴承的花篮式、筐式等多种形式,波浪式的材质一般用钢材冲压制成,花篮式的材质则有实体黄铜、实体青铜、工程塑料、钢或球墨铸铁、钢板冲压、铜板冲压等多种。其形状如图3所示,保持架所用材料的字母和数字代号见表1。

图3 滚动轴承的保持架
表1 保持架所用材料的字母和数字代号

04 滚子
滚子按其形状分为球形、圆柱形(含短圆柱形、长圆柱形和滚针形)、圆锥形(实际为圆台形)、球面形(鼓形)等几种。如图4所示。

图4 滚子的类型
锅炉之家客服热线:











